Наши готовые проекты
Тип фундамента: ленточный / свайно-ростверковый / монолитная плита;
Отмостка;
Септик, скважина
Отмостка;
Септик, скважина
Стены: газобетон D-400, облицовочный кирпич;
Балки перекрытия с утеплением
Балки перекрытия с утеплением
Кровля: двухскатная, металлочерепица, подшива, водосточная система, снегозадержатели
Двери с терморазрывом, ПВХ окна
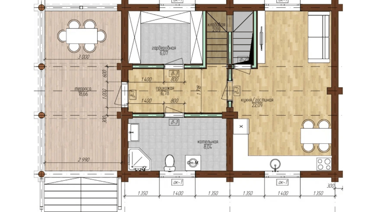
Площадь 82 м²: кухня-гостиная, 3 спальни, котельная, тамбур, крыльцо, терраса
Тип фундамента: ленточный / свайно-ростверковый / монолитная плита;
Отмостка;
Септик, скважина
Отмостка;
Септик, скважина
Стены: газобетон D-400, облицовочный кирпич;
Плиты перекрытия
Плиты перекрытия
Кровля: вальмовая утепленная, металлочерепица, подшива, водосточная система, снегозадержатели
Двери с терморазрывом, ПВХ окна
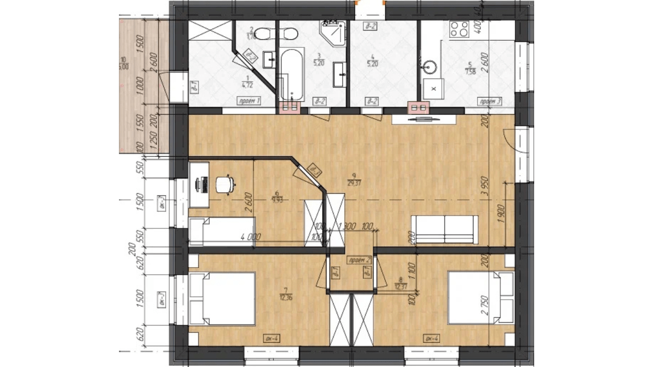
Площадь 117 м²: кухня, гостиная, 3 спальни, котельная, прихожая, крыльцо
Тип фундамента: ленточный / свайно-ростверковый / монолитная плита;
Отмостка;
Септик, скважина
Отмостка;
Септик, скважина
Стены: газобетон D-400, облицовочный кирпич; Межэтажные плиты перекрытия
Кровля: двухскатная утепленная, металлочерепица, подшива, водосточная система, снегозадержатели
Двери с терморазрывом, ПВХ окна
Площадь 140 м²: кухня-гостиная, 3 спальни, кабинет, котельная, гардероб, прихожая, тамбур, крыльцо
Тип фундамента: ленточный / свайно-ростверковый / монолитная плита;
Отмостка;
Септик, скважина
Отмостка;
Септик, скважина
Стены: газобетон D-400, облицовочный кирпич; Межэтажные плиты перекрытия
Кровля: двухскатная утепленная, металлочерепица, подшива, водосточная система, снегозадержатели
Двери с терморазрывом, ПВХ окна
Площадь 199 м²: кухня-гостиная, 4 спальни, котельная, гардероб, постирочная, терраса, тамбур, крыльцо
Тип фундамента: ленточный / свайно-ростверковый / монолитная плита;
Отмостка;
Септик, скважина
Отмостка;
Септик, скважина
Стены: профилированный брус 145х195 мм;
Балки перекрытия с утеплением
Балки перекрытия с утеплением
Кровля: двухскатная, металлочерепица, подшива, водосточная система, снегозадержатели
Двери с терморазрывом, ПВХ окна
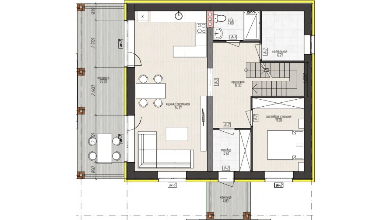
Площадь 121 м²: кухня, гостиная, 3 спальни, котельная, тамбур, крыльцо, терраса
Тип фундамента: ленточный / свайно-ростверковый / монолитная плита;
Отмостка;
Септик, скважина
Отмостка;
Септик, скважина
Стены: газобетон D-400, облицовочный кирпич;
Плиты перекрытия
Плиты перекрытия
Кровля: двухскатная утепленная, металлочерепица, подшива, водосточная система, снегозадержатели
Двери с терморазрывом, ПВХ окна
Площадь 92 м²: кухня-гостиная, 3 спальни, котельная, гардероб, терраса, крыльцо
Тип фундамента: ленточный / свайно-ростверковый / монолитная плита;
Отмостка;
Септик, скважина
Отмостка;
Септик, скважина
Стены: газобетон D-400, облицовочный кирпич;
Балки перекрытия с утеплением
Балки перекрытия с утеплением
Кровля: двухскатная, металлочерепица, подшива, водосточная система, снегозадержатели
Двери с терморазрывом, ПВХ окна
Площадь 87 м²: кухня-гостиная, 3 спальни, котельная, тамбур, крыльцо
Тип фундамента: ленточный / свайно-ростверковый / монолитная плита;
Отмостка;
Септик, скважина
Отмостка;
Септик, скважина
Стены: профилированный брус 145х195 мм;
балки перекрытия
балки перекрытия
Кровля: двухскатная утепленная, металлочерепица, подшива, водосточная система, снегозадержатели
Двери с терморазрывом, ПВХ окна
Площадь 93 м²: кухня-гостиная, 4 спальни, котельная, гардеробная, тамбур, крыльцо
Тип фундамента: ленточный / свайно-ростверковый / монолитная плита;
Отмостка;
Септик, скважина
Отмостка;
Септик, скважина
Стены: газобетон D-400, облицовочный кирпич;
Плиты перекрытия
Плиты перекрытия
Кровля: двухскатная утепленная, металлочерепица, подшива, водосточная система, снегозадержатели
Двери с терморазрывом, ПВХ окна
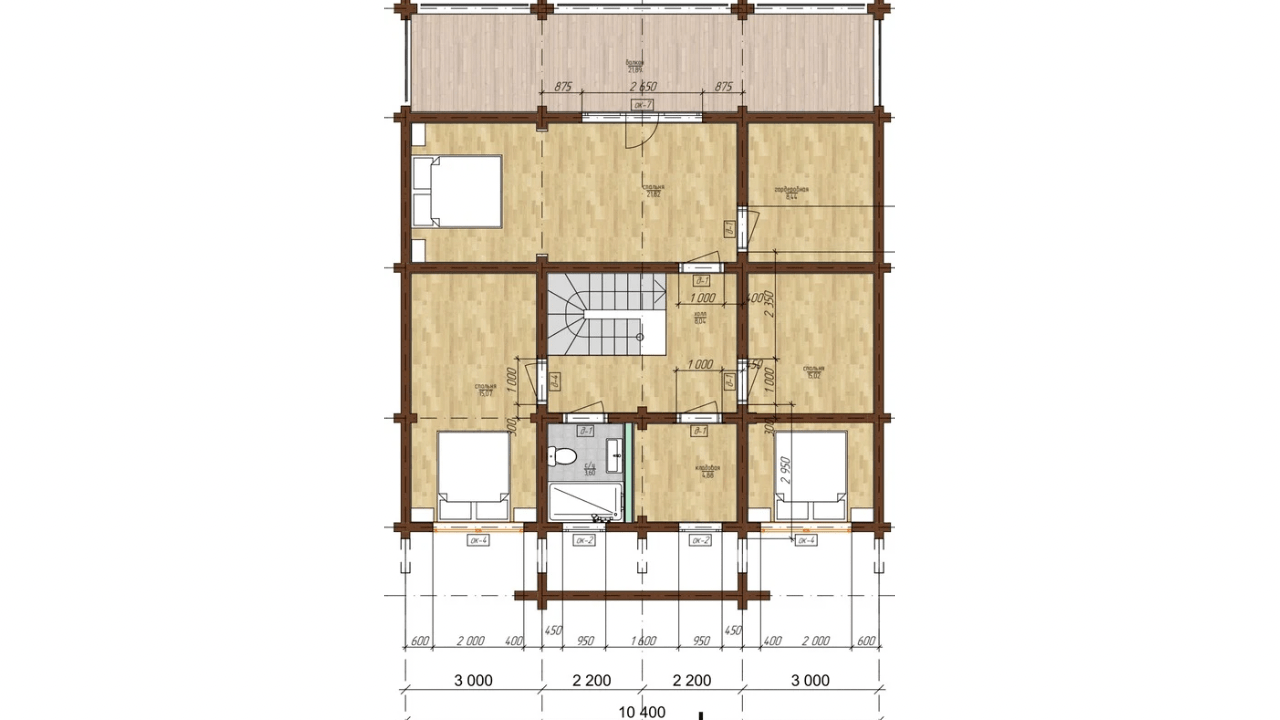
Площадь 148 м²: кухня-гостиная, 3 спальни, котельная, гардероб, кладовая, терраса, крыльцо
Тип фундамента: ленточный / свайно-ростверковый / монолитная плита;
Отмостка;
Септик, скважина
Отмостка;
Септик, скважина
Стены: оцилиндрованное бревно 24 см;
балки перекрытия
балки перекрытия
Кровля: двухскатная утепленная, металлочерепица, подшива, водосточная система, снегозадержатели
Двери с терморазрывом, ПВХ окна
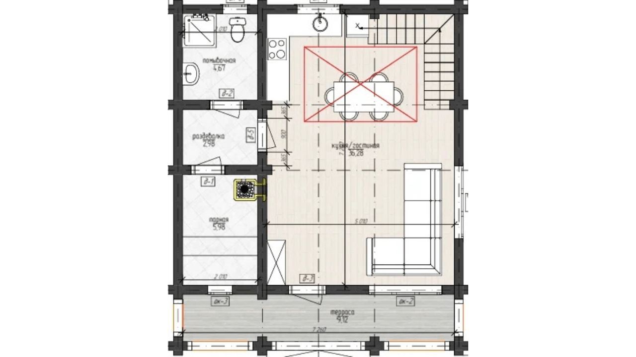
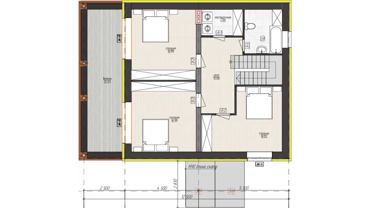
Площадь 114 м²: кухня-гостиная, 3 спальни, парная, раздевалка, терраса, балкон
Тип фундамента: ленточный / свайно-ростверковый / монолитная плита;
Отмостка;
Септик, скважина
Отмостка;
Септик, скважина
Стены: газобетон D-400, облицовочный кирпич;
Балки перекрытия, утепление
Балки перекрытия, утепление
Кровля: вальмовая, металлочерепица, подшива, водосточная система, снегозадержатели
Двери с терморазрывом, ПВХ окна
Площадь 148 м²: кухня, гостиная, 3 спальни, котельная, крыльцо
Тип фундамента: ленточный / свайно-ростверковый / монолитная плита;
Отмостка;
Септик, скважина
Отмостка;
Септик, скважина
Стены: профилированный брус 145х195 мм;
балки перекрытия, утепление
балки перекрытия, утепление
Кровля: двухскатная, металлочерепица, подшива, водосточная система, снегозадержатели
Двери с терморазрывом, ПВХ окна
Площадь 61 м2: кухня-гостиная, 1 спальня, парная, крыльцо
Тип фундамента: ленточный / свайно-ростверковый / монолитная плита;
Отмостка;
Септик, скважина
Отмостка;
Септик, скважина
Стены: профилированный брус 195х145 мм;
балки перекрытия
балки перекрытия
Кровля: двухскатная утепленная, металлочерепица, подшива, водосточная система, снегозадержатели
Двери с терморазрывом, ПВХ окна
Площадь 208 м²: кухня-гостиная, 3 спальни, парная, раздевалка, терраса, балкон
Тип фундамента: ленточный / свайно-ростверковый / монолитная плита;
Отмостка;
Септик, скважина
Отмостка;
Септик, скважина
Стены: оцилиндрованное бревно 24 см;
балки перекрытия
балки перекрытия
Кровля: двухскатная утепленная, металлочерепица, подшива, водосточная система, снегозадержатели
Двери с терморазрывом, ПВХ окна
Площадь 106 м²: кухня-гостиная, 2 спальни, котельная, гардеробная, кладовая, тамбур, терраса